| Projektrahmen | Maßnahmen-Details |
|---|---|
| Vorhabenträger: | Privat |
| Umsetzungszeitraum: | 2018/2019 |
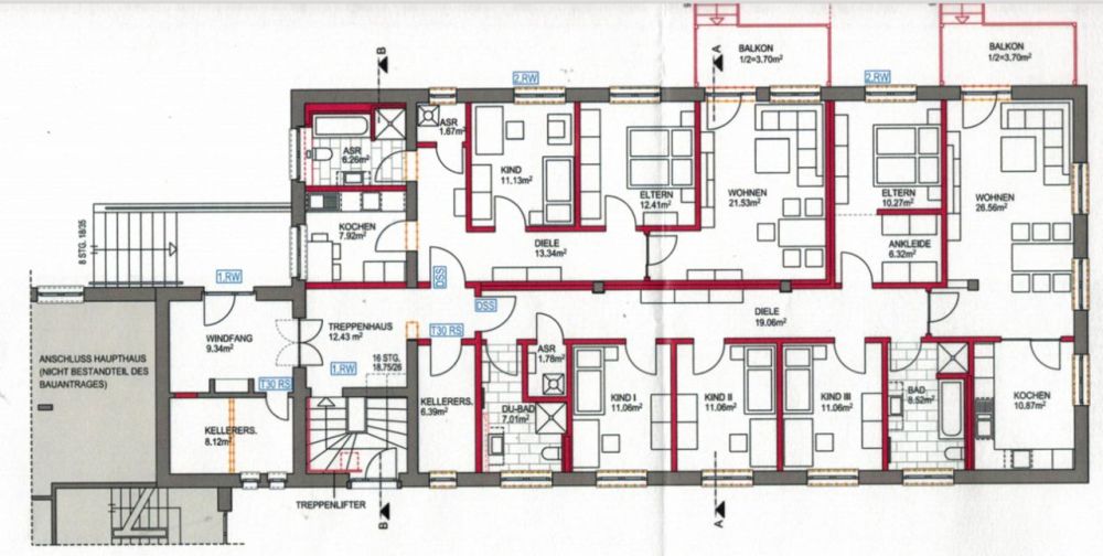
Zwei großzügige Wohnungen für Familien wurden geschaffen und dabei der Denkmalschutz nicht außer Acht gelassen. Mit Weitblick wurden außerdem die Themen Energieeffizienz und Barrierefreiheit bei der Planung und Durchführung des Projektes berücksichtigt.
Detailierte Projektbeschreibung
Wissen Sie noch was ein Wannenbad ist, eine gemeindeeigene Waschanstalt?
Können Sie sich vorstellen ohne eigenes Badezimmer inklusive Badewanne oder Dusche zu leben?
Nein, das geht doch nicht…
Was heute als „normal“ gilt - ein eigener voll ausgestatteter Sanitärbereich - war bis in die 1980er Jahre nicht selbstverständlicher Bestandteil von privatem Wohnraum.
1929 wurde im Burkhardtsdorfer Zentrum das gemeindeeigene Wannenbad eingeweiht. 19 Wannenbäder, 4 Brausebäder, Heilbäder aller Art, ein Schulbrausebad sowie eine öffentliche Waschanstalt standen den Bürgerinnen und Bürgern zur Verfügung. Der bis 2018 denkmalgeschützte Wannenbad-Anbau war eine Errungenschaft für die Gemeinde. Doch bereits in den 1960er Jahren nahm die Nutzung des Betriebes stetig ab. In den privaten Haushalten zog das eigene „kleine Wannenbad“ ein. Ein Umbruch war in Gang gesetzt. Wohnen wurde neu gedacht.
Letztendlich wurde der Betrieb des historischen Wannenbades in den 1980er Jahren eingestellt und die Ausstattung zurück gebaut. Genutzt wurden die Räumlichkeiten danach als Lagerfläche.
Die privaten Projektträger nahmen sich des Gebäudes an und verfolgten ihr besonderes Ziel – die Schaffung von attraktivem, altersunabhängigem, familienfreundlichem und barrierefreiem Wohnraum in Zentrumslage. Gleichzeitig wollten Sie zeigen, dass es möglich ist, alte Bausubstanz zu bewahren, den Verfall zu stoppen und die Gemäuer mit neuem Leben zu füllen.
All diese Visionen haben die privaten Projektträger mit ihrer geleisteten Zeit und bewundernswertem Engagement erfolgreich umsetzten können. Sie bereichern damit nachhaltig unsere Region.
Dieses Projekt mit einem Investitionsvolumen von rund 225.000 Euro, ist ein Vorhaben, welches mit 35 Prozent Leader-Fördermitteln unterstützt werden konnte. Es erfreut uns überaus, bei passenden Aufrufen immer wieder feststellen zu dürfen, mit welcher Bereitschaft und mit welchem Ideenreichtum sich private Antragssteller für die Entwicklung unserer Region stark machen und fördern dies gern im Rahmen unserer Möglichkeiten.










